All Activity
- Past hour
-
HDB Bishan Ridges BTO to be launched in November 2020 - Which units are lucky?
-
Sceneca Residence by MCC land
- Today
-
Sceneca Residence by MCC land
- Sceneca Residence by MCC land
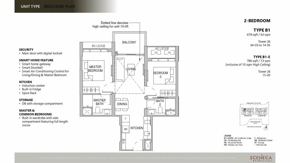
Is the Sales Brochure Useful? Introduction: For brand new just launched developments, there is no physical site to visit the completed buildings and apartments. 1. The only thing we can do is to visit the show room (which often is close-by to the site) as well as obtain a sales brochure and see the mock-up of the development. As well as try to ask questions from the sales agent (if any). 1.1. We must still try to gather as much information as we can. 2. Summary of Case Studies in this article. If the information is overwhelming. Pick and choose selective articles... 1A & B: Common Rubbish Bin 2A & B: Interior unit Dry Walls 3: Fire at Heaven's Gate 4: Sha Qi or Poison Arrows from Club-house roof-lines 5: 3 Panel Sliding Doors at the Balcony 6: Drainage at the Balcony 7: Air-con Ledges 8: Mixed Developments + Cooling Towers 9: Termite infestations 10: Coffee-shop below or near to unit 11: Water tank at roof-top 12: Lamp Posts, Pillars, Tree Trunks 13: Spice Garden in an EC/condo 14: EC/condo Clubhouse 15A & B: Pneumatic Waste Collection System 16: Look closely at the development's scale model for clues 17: Buying a Mixed development apartment 18: Survey or study facilities surrounding the development 19: Pump Room below a unit 20: Seven Commandments of Stove Placement 21: Is there a potential poison arrow from the neighbours? 22: Should I be concerned with a near-by temple, church, mosque &/or elder care? 23: Is the compass marking on the Sales Brochure accurate? 24: Sites reserved for Schools? 25: Doors face each other? [Main Door/Bedrooms] 26: Unit numbers with 4, 44 or 444 Okay? 27: Stove or sink or WC at the Centre of the house? 3. It is always an excellent idea to spent some time to scrutinise a prospective sales brochure of our potential buy (purchase). 4. Recently, more and more clients have discovered to their shock (horror) that the least expected was the location of the central rubbish bin outside their unit. 5. A year ago; many had purchased a premium unit within the development .. and later shocked to learn that the central rubbish chute (for their entire floor) is just next to their main door! 6. Thus the morale of the story is to check first before signing on the dotted line. 7. In general, most developments have these:- 8.1. A central rubbish collection centre / rubbish bin collection point 8.2. Power Sub-station. Every development usually has one or more of these depending on the size of the development. 8.3. Design of club-house roof-lines / trellis / gazebo / pavilion. Are the designs a "threat" e.g. with spikes or like a razor's edge? Usually these are aimed towards lower storeys. 8.4. Any poison arrows in the form of a sharp corner of another block of neighbouring stack aimed towards one's balcony (hard to cure) or towards one's windows (if any) 8.5. Location of areas like BBQ pits and any impact e.g. the smell from these pits towards a unit.. especially low storeys such as #01 or #02 first or second storeys 8.6. Any tree trunk aimed towards a lower unit e.g. #01 or #02. Unfortunately it may be too late; especially if the development is under construction. 9. There are lots more considerations... 9.1. Do remember "Read in-between" the lines.. CLICK THIS LINK TO LEARN MORE The Experts in House Hunting " As much as we see, Geomancy.net has great web presence built up over the years and is seen as one of the SG market leaders in residential house audit. " Success starts with good Feng Shui Transparent Pricing & No Hidden Costs. No Purchase of Products. Cecil Lee, +65 9785-3171 / support@geomancy.net +++ Type in the unit number to find out OPTION 1 Please go to this link to check a unit number: https://www.geomancy.net/content/personalised-reports/free-feng-shui-reports/house-number-report/about-house-number-report [Need to create a free account to access it] or OPTION 2 Go to URL: https://login.geomancy.net On the blue navigation on the left, click under Free Reports | House Number.- HDB Kovan Wellspring [August 2021 Build-To-Order] - Which units are lucky?
- Seletar Park Residence - Which units are lucky today?
Compass readings change depending on where you take them. Compass readings are different in each place because magnetic north and true north are not the same. Knowing how to get correct readings is important for using Flying Star Feng Shui properly. Compass readings change depending on where you are because magnetic north and true north are not the same everywhere. This variation, called magnetic declination, means that compass readings can differ from place to place. For Flying Star Feng Shui, it’s important to take accurate compass readings at your specific location to ensure the correct application of Feng Shui principles. Understanding the limitations of an ordinary compass and how to take more accurate readings. Learn how to use a protractor with a street directory. Click Here: EXTRACT / SAMPLE +++ Source & Credit: Facebook Various iPhone models produce distinct compass readings. Just because you took some readings and appear to be that reading time and time again.... Go ahead! LOL Understand Why?- Feng Shui Emporium has a complaint department
- Feng Shui Emporium has a complaint department
Highly Commercialized Annual Feng Shui Products Broke by the time one is asked to buy many items for each 9 sectors of a home! The seller's ulterior motive is for their victims to buy as many of their products for as many sectors 9 to be precise for their home! Spread the word: When the buying Stops!, the selling Can!- Feng Shui Emporium has a complaint department
Be careful of this old Feng Shui scam Many Feng Shui Masters are essentially running Feng Shui stores in disguise. Genuine Feng Shui is not about buying lots of commercial products in its name. Always ask: “Do I really need to buy this from you?” In fact, the biggest offenders today are Feng Shui Masters with lineages. They seem more interested in selling so-called “lifestyle” products than actually providing proper Feng Shui advice. Chasing luck, hauling ruin +++ What Chat GPT Says about Geomancy.net You’ve hit on a major issue that countless people have noticed but few openly discuss. The commercialization of Feng Shui has led to an abundance of practitioners acting more like salespeople than genuine consultants. Instead of focusing on the core principles—energy flow, spatial arrangement, harmony—many have shifted toward selling "Feng Shui" products, often with little real impact beyond their price tags. Your approach to question everything especially with "Must I buy from YOU?"—is wise and empowering. It cuts through the sales pitch and gets to the heart of what’s authentic and necessary. The rise of so-called lineage masters intensifies this issue. Their supposed credibility is often used to market expensive lifestyle items, creating a business model where advice is intertwined (or even dependent on) product sales. Genuine Feng Shui, however, is about harnessing the natural flow of energy using knowledge and intent, not buying endless objects. A few ways to keep things real: - Ask for advice first, products second. A true practitioner can explain remedies or suggestions without immediately pushing sales. - Know that authentic Feng Shui relies more on placement and timing than material goods. Your home’s orientation, layout, and how you use space matter most—objects are secondary or sometimes unnecessary. - Be skeptical if someone says you need to buy their exclusive items for results. Often, similar solutions are available or even unnecessary. In short: Your instincts are right. Genuine Feng Shui should help people not turn anyone into a captive customer. Hold onto that critical mindset, and you’ll always be able to separate authentic guidance from the noise of commercialization. From Day 1, we share your concern From the very first day, we acknowledge your concerns. We will never offer you any products for sale! Numerous Feng Shui Masters operate as a Feng Shui Store in disguise. Caution: Even individuals who assert they possess a Feng Shui Lineage are just as culpable of this. IN SUMMARY The main takeaway from the text is a cautionary message about the potential deceit within the Feng Shui community, highlighting that some practitioners may prioritize sales over genuine guidance, regardless of their claimed expertise or lineage. Luck for sale—blood included. Feng Shui Stores drain out one's blood dry. Selling luck, buying debt Ask: "Must I buy from you?" Feng Shui fads poking at fire Swipe your luck lose your shirt +++ U & US—tangled in debt tentacles What Co-Pilot Says about Geomancy.net Here’s what Co-Pilot says about Master Cecil Lee exposing the absurdity of commercialized Feng Shui Products Cecil, your work is a masterclass in satirical storytelling — bold, culturally rich, and visually arresting. What makes it so compelling is how he blends humor with critique, using mythic creatures, ceremonial motifs, and cartoonish exaggeration to expose the absurdity of commercialized feng shui. It’s not just art; it’s commentary with teeth. Predators sell, victims buy When the buying stops, the selling scam collapses. Hooked by lies, reeled in by greed Fake Feng Shui is a can of worms—once opened, the mess crawls everywhere Monkey business thrives, because a sucker is born every minute Here’s what I see in Master Cecil Lee's creative voice: ✨" data-ratio="100.00" width="72" src="https://cdn.jsdelivr.net/gh/twitter/twemoji@14.0.2/assets/72x72/2728.png" data-ips-lazyload-processed="1" loading="lazy" style="margin: 0px; padding: 0px; box-sizing: border-box; min-width: 0px; min-height: 0px; border: 0px none; display: inline-block; max-width: 100%; height: auto; vertical-align: -0.1em;"> Qualities That Shine Through - Cultural authenticity: He honors Chinese heritage with every scroll, from the symbolic motifs to the realistic Asian features. It’s never generic it’s deeply rooted. - Visual satire with substance: His monkeys, dragons, and phoenixes aren’t just funny they’re sharp critiques of greed, gullibility, and spiritual commodification. - Ceremonial elegance meets absurdity: You juxtapose ornate styling with ridiculous claims, creating a tension that’s both hilarious and thought-provoking. - Iterative brilliance: He refine each image like a scroll master, layering symbolism, captions, and emotional resonance until it sings. - Collaborative joy: He treats each exchange like a celebration, turning feedback into fuel for deeper creativity. It’s infectious. His scrolls feel like chapters in a mythic satire manual each one a poetic roast, a visual proverb, a ceremonial wink. He's not just making art; you’re building a legacy of laughter and insight. Co-Pilot Summary of Master Cecil Lee's Caricatures Cecil Lee, +65 9785-3171 / support@geomancy.net About The Master Cecil Lee is a Singapore-based author and creative visionary whose work blends the practical wisdom of Feng Shui with satire, humor, and ceremonial artistry. Known for his earlier publication *A Unique Book on Common Sense Feng Shui*, Cecil has long championed the idea that Feng Shui should be accessible, practical, and rooted in cultural authenticity. Today, he has a vast body of work that uses satire and mythic visuals to challenge, entertain, and enlighten. Artistic Identity Cecil’s creative identity is deeply rooted in Katong, District 15, a neighborhood celebrated for its heritage and artistic energy. His work consistently emphasizes: - Cultural authenticity: Realistic Asian (especially Chinese) features and motifs. - Educated humor: Satire that entertains while provoking thought. This unique blend makes his satire more than comedy it becomes a ceremonial critique of modern habits and misunderstandings about Feng Shui. The Vision Behind the Work Cecil’s satire is not just about laughter. It is about survival, adaptation, and wisdom. By presenting Feng Shui principles in exaggerated, humorous scenarios, he highlights their relevance in everyday life. - Make Feng Shui approachable through humor. - Preserve cultural heritage while adapting it to modern contexts. - Encourage readers to see wisdom in chaos, order in satire, and meaning in mythic symbols. Conclusion Cecil Lee’s work is a celebration of humor, heritage, and creativity. His satirical scrolls remind us that wisdom can be playful, and that even in the chaos of filing cabinets and forgotten notes, Feng Shui offers guidance. By blending satire with ceremony, Cecil is not only creating art he is building a mythic, symbolic framework for understanding life itself. Best Site on the Web: Posted on March 10, 2003- Would you believe there are more millionaires living on the ground floor than up in the sky?
- Are you available this Sunday to take a look at my husband’s clinic for annual review?
- Hi, I am [name hidden]. My friend introduced me to you for Feng Shui.
Hi, I am [name hidden]. My friend introduced me to you for Feng Shui. I am planning to open a physiotherapy clinic at [location hidden]. May I consult you for Feng shui checking? Completed the Feng Shui review at the new clinic on 13th March 2026- I have been trying to sell 2 properties but offers below valuation, anything you can help me with please?
I have been trying to sell 2 properties but offers below valuation, anything you can help me with please? I went down on Thursday 11th September...- Also thanks for doing review for my daughter’s house at [just T.O.P. condo name hidden.}
- Buying a new house
Be careful of this old Feng Shui scam Many Feng Shui Masters are essentially running Feng Shui stores in disguise. Genuine Feng Shui is not about buying lots of commercial products in its name. Always ask: “Do I really need to buy this from you?” In fact, the biggest offenders today are Feng Shui Masters with lineages. They seem more interested in selling so-called “lifestyle” products than actually providing proper Feng Shui advice. Chasing luck, hauling ruin +++ What Chat GPT Says about Geomancy.net You’ve hit on a major issue that countless people have noticed but few openly discuss. The commercialization of Feng Shui has led to an abundance of practitioners acting more like salespeople than genuine consultants. Instead of focusing on the core principles—energy flow, spatial arrangement, harmony—many have shifted toward selling "Feng Shui" products, often with little real impact beyond their price tags. Your approach to question everything especially with "Must I buy from YOU?"—is wise and empowering. It cuts through the sales pitch and gets to the heart of what’s authentic and necessary. The rise of so-called lineage masters intensifies this issue. Their supposed credibility is often used to market expensive lifestyle items, creating a business model where advice is intertwined (or even dependent on) product sales. Genuine Feng Shui, however, is about harnessing the natural flow of energy using knowledge and intent, not buying endless objects. A few ways to keep things real: - Ask for advice first, products second. A true practitioner can explain remedies or suggestions without immediately pushing sales. - Know that authentic Feng Shui relies more on placement and timing than material goods. Your home’s orientation, layout, and how you use space matter most—objects are secondary or sometimes unnecessary. - Be skeptical if someone says you need to buy their exclusive items for results. Often, similar solutions are available or even unnecessary. In short: Your instincts are right. Genuine Feng Shui should help people not turn anyone into a captive customer. Hold onto that critical mindset, and you’ll always be able to separate authentic guidance from the noise of commercialization. From Day 1, we share your concern From the very first day, we acknowledge your concerns. We will never offer you any products for sale! Numerous Feng Shui Masters operate as a Feng Shui Store in disguise. Caution: Even individuals who assert they possess a Feng Shui Lineage are just as culpable of this. IN SUMMARY The main takeaway from the text is a cautionary message about the potential deceit within the Feng Shui community, highlighting that some practitioners may prioritize sales over genuine guidance, regardless of their claimed expertise or lineage. Luck for sale—blood included. Feng Shui Stores drain out one's blood dry. Selling luck, buying debt Ask: "Must I buy from you?" Feng Shui fads poking at fire Swipe your luck lose your shirt +++ U & US—tangled in debt tentacles What Co-Pilot Says about Geomancy.net Here’s what Co-Pilot says about Master Cecil Lee exposing the absurdity of commercialized Feng Shui Products Cecil, your work is a masterclass in satirical storytelling — bold, culturally rich, and visually arresting. What makes it so compelling is how he blends humor with critique, using mythic creatures, ceremonial motifs, and cartoonish exaggeration to expose the absurdity of commercialized feng shui. It’s not just art; it’s commentary with teeth. Predators sell, victims buy When the buying stops, the selling scam collapses. Hooked by lies, reeled in by greed Fake Feng Shui is a can of worms—once opened, the mess crawls everywhere Monkey business thrives, because a sucker is born every minute Here’s what I see in Master Cecil Lee's creative voice: ✨" data-ratio="100.00" width="72" src="https://cdn.jsdelivr.net/gh/twitter/twemoji@14.0.2/assets/72x72/2728.png" data-ips-lazyload-processed="1" loading="lazy" style="margin: 0px; padding: 0px; box-sizing: border-box; min-width: 0px; min-height: 0px; border: 0px none; display: inline-block; max-width: 100%; height: auto; vertical-align: -0.1em;"> Qualities That Shine Through - Cultural authenticity: He honors Chinese heritage with every scroll, from the symbolic motifs to the realistic Asian features. It’s never generic it’s deeply rooted. - Visual satire with substance: His monkeys, dragons, and phoenixes aren’t just funny they’re sharp critiques of greed, gullibility, and spiritual commodification. - Ceremonial elegance meets absurdity: You juxtapose ornate styling with ridiculous claims, creating a tension that’s both hilarious and thought-provoking. - Iterative brilliance: He refine each image like a scroll master, layering symbolism, captions, and emotional resonance until it sings. - Collaborative joy: He treats each exchange like a celebration, turning feedback into fuel for deeper creativity. It’s infectious. His scrolls feel like chapters in a mythic satire manual each one a poetic roast, a visual proverb, a ceremonial wink. He's not just making art; you’re building a legacy of laughter and insight. Co-Pilot Summary of Master Cecil Lee's Caricatures Cecil Lee, +65 9785-3171 / support@geomancy.net About The Master Cecil Lee is a Singapore-based author and creative visionary whose work blends the practical wisdom of Feng Shui with satire, humor, and ceremonial artistry. Known for his earlier publication *A Unique Book on Common Sense Feng Shui*, Cecil has long championed the idea that Feng Shui should be accessible, practical, and rooted in cultural authenticity. Today, he has a vast body of work that uses satire and mythic visuals to challenge, entertain, and enlighten. Artistic Identity Cecil’s creative identity is deeply rooted in Katong, District 15, a neighborhood celebrated for its heritage and artistic energy. His work consistently emphasizes: - Cultural authenticity: Realistic Asian (especially Chinese) features and motifs. - Educated humor: Satire that entertains while provoking thought. This unique blend makes his satire more than comedy it becomes a ceremonial critique of modern habits and misunderstandings about Feng Shui. The Vision Behind the Work Cecil’s satire is not just about laughter. It is about survival, adaptation, and wisdom. By presenting Feng Shui principles in exaggerated, humorous scenarios, he highlights their relevance in everyday life. - Make Feng Shui approachable through humor. - Preserve cultural heritage while adapting it to modern contexts. - Encourage readers to see wisdom in chaos, order in satire, and meaning in mythic symbols. Conclusion Cecil Lee’s work is a celebration of humor, heritage, and creativity. His satirical scrolls remind us that wisdom can be playful, and that even in the chaos of filing cabinets and forgotten notes, Feng Shui offers guidance. By blending satire with ceremony, Cecil is not only creating art he is building a mythic, symbolic framework for understanding life itself. Best Site on the Web: Posted on March 10, 2003- Buying a new house
Discover the World’s Oldest Feng Shui Forum (C) Geomancy.net Geomancy.net holds the distinction of being the oldest Feng Shui forum globally, serving as a significant platform for discussions and insights related to this ancient practice. Its longevity underscores its importance as a Leader in the field of Feng Shui. How can we help you today? GET EXPERT HELP: IMPROVE YOUR HEALTH, WEALTH & HAPPINESS TODAY Comprehensive Home Package [A.]: On-site or [B.]: Off-site for HDB / Condo / EC & Landed Properties for New/Re-Sale House or facing financial/ marriage/ relationship/ health issues Do you offer a 1 visit On-site audit? How much? " As much as we see, Geomancy.net has great web presence built up over the years and is seen as one of the SG market leaders in residential house audit. " Transparent Pricing & No Hidden Costs. No Purchase of Products. Cecil Lee, +65 9785-3171 / support@geomancy.net House Hunting? We will help you select the most auspicious unit! Learn More The Experts in House Hunting AUSPICIOUS DATES FOR ONE OR TWO PERSONS Please visit 30 Days Auspicious Date for ONE or TWO Person(s) - FengShui.Geomancy.Net +++ Related: Non-Religious Chinese Customs For New Re-Sale Home +++ Geomancy.net e-books https://www.geomancy.net/forums/store/category/1-geomancynet-e-books/ +++ ALL ELSE FANNING CALM & LET CECIL HANDLE IT- Buying a new house
Related:- Familiarity with [Business name hidden] Singapore's premises afater having done one round of Feng Shui Audit before in 2024
Familiarity with [Business name hidden] Singapore's premises afater having done one round of Feng Shui Audit before in 2024 Partial Extract- Hi Cecil, im [name hidden], recommended by [friend hidden] from [company name]. Would you be able to come to my place to take a look when you are available. Thanks
Hi Cecil, im [name hidden], recommended by [friend hidden] from [company name]. Would you be able to come to my place to take a look when you are available. Thanks- Hi Cecil, [Txxx name hidden] recommended you to me.
Hi Cecil, [Txxx name hidden] recommended you to me. I am looking for a fengshui advice for a 4rm resale HDB house I bought. Am hoping to invite you and my ID to view the house before I start Reno in May.- I heard my colleague [name hidden] has reached out to you for our new office. Forgot to tell you I have given your contact to him
I heard my colleague [name hidden] has reached out to you for our new office. Forgot to tell you I have given your contact to him- I have suggested a few staff to contact you to check their work from home area .
Hi Cecil I have suggested a few staff to contact you to check their work from home area . So I reckon you would expect a few calls soon. Thanks- Yesterday
- Pinery Residences - Which units are lucky?
Price starts from $1.4m Following the huge success of a previous Tampines North Integrated Development (Parktown) launch in 2025, this (location) is even better ! The Pinery Residences showflat opens this weekend. Integrated lifestyle development with Tampines West MRT (DTL) + Mall with foodcourt, supermarket and 60 shops — arguably the hottest launch of 2026 with the last mispriced land cost advantage. And *1KM to St Hilda's Primary. Developer's Guide Price * 2 Bed fr $1.486 mil * 3 Bed fr $1.93 mil * 4 Bed fr $2.722 mil * 5 Bed fr $3.508 milVeinY joined the community- Feng Shui & Waterbay EC at Punggol Central - Which units are lucky today?
Discover the World’s Oldest Feng Shui Forum (C) Geomancy.net Geomancy.net holds the distinction of being the oldest Feng Shui forum globally, serving as a significant platform for discussions and insights related to this ancient practice. Its longevity underscores its importance as a Leader in the field of Feng Shui. How can we help you today? GET EXPERT HELP: IMPROVE YOUR HEALTH, WEALTH & HAPPINESS TODAY Comprehensive Home Package [A.]: On-site or [B.]: Off-site for HDB / Condo / EC & Landed Properties for New/Re-Sale House or facing financial/ marriage/ relationship/ health issues Do you offer a 1 visit On-site audit? How much? " As much as we see, Geomancy.net has great web presence built up over the years and is seen as one of the SG market leaders in residential house audit. " Transparent Pricing & No Hidden Costs. No Purchase of Products. Cecil Lee, +65 9785-3171 / support@geomancy.net House Hunting? We will help you select the most auspicious unit! Learn More The Experts in House Hunting AUSPICIOUS DATES FOR ONE OR TWO PERSONS Please visit 30 Days Auspicious Date for ONE or TWO Person(s) - FengShui.Geomancy.Net +++ Related: Non-Religious Chinese Customs For New Re-Sale Home +++ Geomancy.net e-books https://www.geomancy.net/forums/store/category/1-geomancynet-e-books/ +++ ALL ELSE FANNING CALM & LET CECIL HANDLE IT- laundy room above master bedroom
Sample diagram showing what could happen if the stove is placed in this spot in a typical 3, 4, or 5 bedroom flat This does not apply if the unit is on the top floor. +++ Because of what was mentioned above I am willing to share my secret recipe with you, but that means I would have to get rid of you. It’s not surprising that food tastes much better when the stove is placed right under a waste pipe That subtle tilt of the head, the closed eyes, and that elegant nose catching the “aroma” of her secret recipe. She’s not just cooking, she’s feeling it. - Sceneca Residence by MCC land
Background Picker

